[Construction Logement] Des petites maisons à petits prix pour relancer le marché

, mis à jour le 19/12/2024 à 14h05
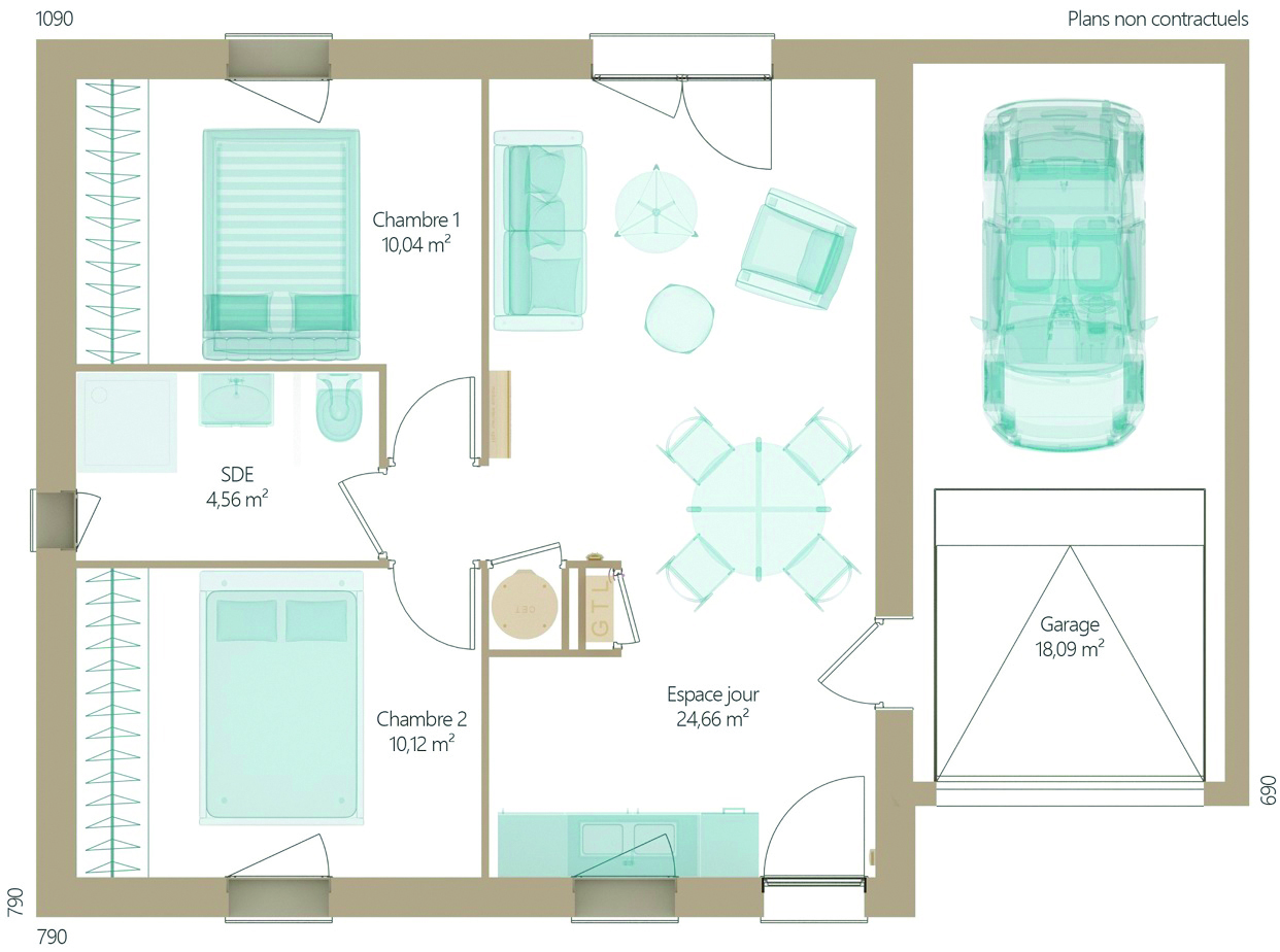
Image
Plan maison Hexaom

Alors que le gouvernement s’apprête à rendre le PTZ accessible à la construction neuve, le constructeur de maisons Hexaom décide la mise en place d’un “coup de pouce” afin de permettre aux primo-accédants de concrétiser leurs (petits) projets.

Partager sur

Face à un marché de la construction de maisons individuelles en panne, le groupe Hexaom innove. Il a imaginé et conçu des maisons évolutives, à partir de trois pièces ou 50 m², permettant de devenir propriétaire avec un budget maîtrisé ».

Loïc Vandromme, directeur général d’Hexaom, justifie : « Même si les taux de crédit ont significativement baissé depuis un an (…) ils restent supérieurs à 3 %. Dans un contexte de prix de l’immobilier et du foncier encore élevés en l’absence de PTZ depuis avril 2024, nous avons dû nous adapter pour continuer à pouvoir accompagner ceux qui veulent faire construire leur maison avec un budget limité. C’est pourquoi nous proposons ces maisons évolutives qu’ils auront le loisir de pouvoir aménager ou agrandir lorsque leurs finances le permettront ».

En effet, la conception permet d’aménager les combles ultérieurement ou de transformer l’imposant garage en pièce supplémentaire de 16 m².

Primo-acheteurs, couples seniors ou parents solos

Tarif de base : moins de 100 k€, hors terrain, soit avec un crédit de 25 ans, des mensualités proches à celles d’un appartement T3. Steve Beaudel (directeur marketing & commerce) se défend de construire au rabais : « Ces maisons (…) conservent une qualité de produits et les mêmes artisans que nos maisons traditionnelles. Il ne s’agit pas de maisons low-cost mais de maisons optimisées grâce à nos BE et aux négociations avec nos partenaires acceptant de faire des efforts dans l’intérêt commun ».

Le public visé ? Les jeunes s’installant pour la première fois, les familles monoparentales, les ménages âgés qui cherchent à s’installer dans un logement plus adapté, voire les propriétaires-bailleurs pour un premier achat locatif.

Partager sur

Inscrivez-vous gratuitement à nos newsletters

S'inscrire